Ref # : GE1932
For Sale € 295,000.00
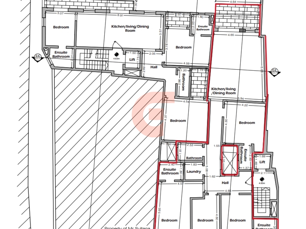
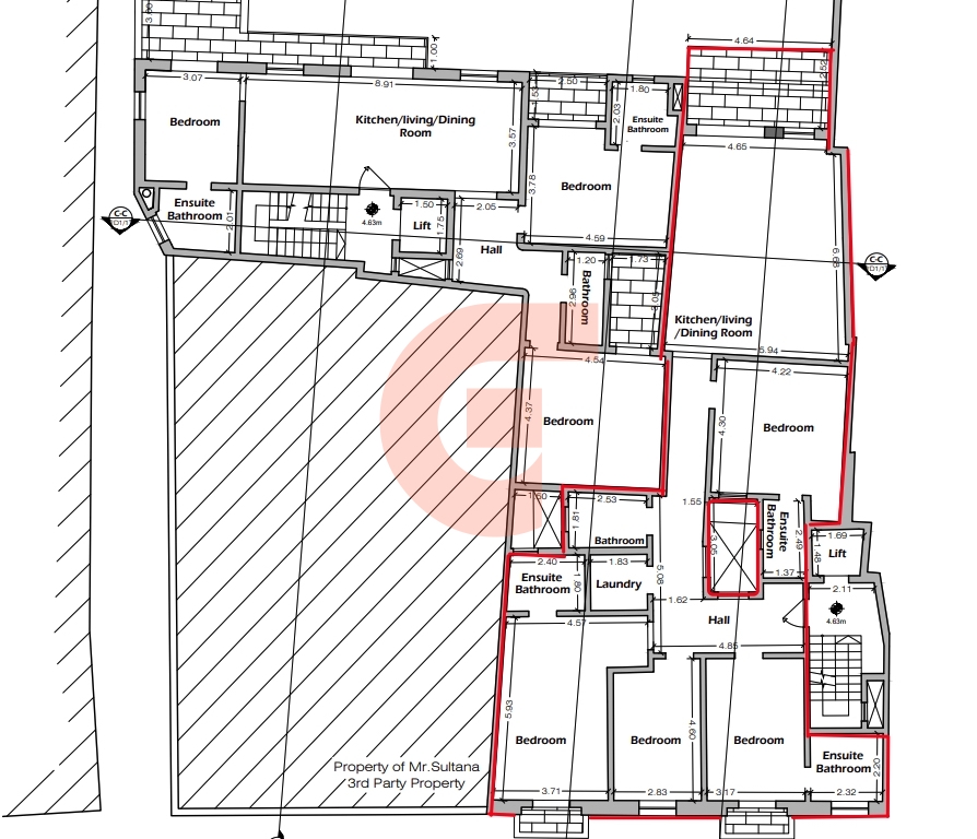
Cliff-Edge, Semi-Detached 4 Bedroom Apartment
Xaghra (Gozo), GOZOOverview
Corner semi-detached 3 bedroom Apartment located in one of the most requested areas of the village enjoying magnificent views of valley reaching Marsalforn bay beyond, Accommodation comprises a welcoming onto an L-shape open plan living/dining/kitchen overlooking the terrace and views, 4 double bedroom(2en-suite) one with a terrace and views, bathroom and central yard. Being sold in shell form with common parts and lift ready.
Giovanni Real Estate
One of the successful real estate agency in the Maltese Islands offering property for sale and turnkey solutions in Malta and Gozo. A vast range of,Apartments, Penthouses Maisonettes, Terraced Houses, Traditional Farmhouses, Houses of character ,Bungalows, Villas, Commercial outlets, property investments and properties for sale are available in Malta and Gozo.
Check out our website, the best place to start your real estate search. You can also contact our real estate agent for a customized selection of the property types you are interested in, including professional advice and opinion.




