Ref # : GE3941
For Sale € 390,000.00
Modern Terraced House with Garage & Splash Pool
Ghajnsielem, GOZOOverview
House 2 – Contemporary Terraced House with Garage & Roof Pool – Għajnsielem
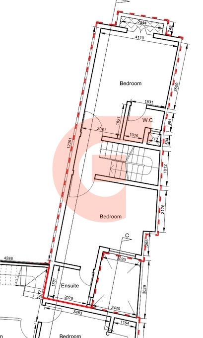
Located in a desirable residential street in Għajnsielem, this beautifully designed terraced house offers approximately 174.6 sq.m of internal space and a highly functional layout, perfect for modern living.
The ground floor features a street-level garage and a spacious open-plan kitchen, living, and dining area, creating a bright and welcoming environment ideal for everyday living and entertaining.
The first floor comprises three well-proportioned bedrooms, including a master bedroom with en-suite facilities, along with a main bathroom and additional guest amenities. The layout is thoughtfully designed to maximise space, comfort, and privacy.
At roof level, the property benefits from a private splash pool and roof terrace, offering an ideal outdoor area for relaxation, entertaining, or enjoying the tranquil village surroundings.
Additional features include:
-
Street-level garage
-
Private roof terrace with splash pool
-
En-suite bedroom
-
Multiple bathrooms
-
Service area
-
Excellent internal layout
-
Located in a quiet yet central area of Għajnsielem
This property represents an excellent opportunity for buyers seeking a stylish home or investment in Gozo.
Features
Base Information
Parking Information
Building Information
General Amenities
Exterior Amenities
Giovanni Real Estate
One of the successful real estate agency in the Maltese Islands offering property for sale and turnkey solutions in Malta and Gozo. A vast range of,Apartments, Penthouses Maisonettes, Terraced Houses, Traditional Farmhouses, Houses of character ,Bungalows, Villas, Commercial outlets, property investments and properties for sale are available in Malta and Gozo.
Check out our website, the best place to start your real estate search. You can also contact our real estate agent for a customized selection of the property types you are interested in, including professional advice and opinion.





